
1000 Gallon Pro Series Ultra Pro Whiskey Still
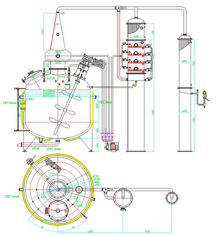
The drawing is of one of our 1000 gallon Jacketed, Steam Heated, Pro Series, Ultra Pro Whiskey Stills with Optional CIP Plumbing and Pump and Heads/Hearts/Tails Receiving Tank. The listed price is for the basic still without these options. This Still comes with two Copper Columns. The Copper Scotch Column sets on the Still while the 16", 4 plate Bubble Plate Column is offset with it's own stand. The individual plate drain valves in the 4 Plate Whiskey Column can be opened or closed allowing for better control of flavor profiles and proof. The Dephlegmator at the top of the Whiskey Column is used to control proof. With the optional Bubble Plate in the Scotch Column this Still will produce up to 170 proof in one run. If you are doing a stripping run, or if you are doing a full flavored Brandy there is a bypass valve that allows you to bypass the 4 Plate Whiskey Column so that you are only running alcohol through the Scotch Column. This 1000 Gallon Still must be heated by a Low Pressure Steam Boiler. This 1000 gallon Still is 14’7" tall. The width of the Still including the condenser is 16’. This Still is great for producing Whiskey, Bourbon, Moonshine, Brandy, Rum and Gin (with the optional Gin Basket).
This 1000 gallon Ultra Pro Whiskey Still comes standard with:
1000 Gallon Operating Capacity 304SS Stainless Steel Boiler
1120 Gallon Actual Capacity
8hp 230vac 3 phase 0 rpm to 45 rpm Variable Speed Agitator
18" Clamp Down Manway
4" Sight Glass in the Manway
5 PSI Pressure Relief Valve on the Inner Boiler
5 PSI Vacuum Relief Valve on the Inner Boiler
15 PSI ASME Pressure Relief Valve On the Jacket
15 PSI Steam Jacket
Insulation Jacket
4" Tri Clamp Butterfly Valve on the Drain
Copper Scotch Style Column on the Still
4" Sight Glass in The Sphere of the Copper Scotch Style Column
16" Diameter Offset, Whiskey Column with 4 Bubble Plates
16" Diameter Tube & Shell Dephlegmator on the 4 Plate Offset Column
(4) 4" Sight Glasses in the Whiskey Column
4 CIP Spray Balls in the Whiskey Column (1 above each plate)
4 Plate Drain Valves
Drain Return from the 4 Plate Whiskey Column to the Still Boiler
4" Face Thermometer above the Dephlegmator in the Whiskey Column
4" Face Thermometer below the Dephlegmator in the Whiskey Column
2 CIP Spray Balls in the Boiler
4" Face 0°F to 250°F Thermometer in the Scotch Column
3" Face 0°F to 250°F Thermometer on the inner Boiler
14"x59" Tube and Shell Condenser
Stainless Parrot's Beak
Bolt to the Floor Stainless Table Stand or Stainless Column Stand for the Condenser and Offset Columns, You Pick.
14’7" Overall Height
Mirror Polish on Copper and Stainless
Inner Boiler Has a Mirror Polish
1/3 Payment due when ordering equipment.
1/3 Payment due when equipment is completed.
1/3 Payment due plus shipping when equipment is ready to ship.
Options:
Bubble Plate with Drain Valve behind the Sight Glass in the Column: $3,247.04
Upgrade to a 24" Manway: $1,162.02
Extra Thermowell in the columns for a Temperature Probe: $95.73
Extra Thermowell above the Dephlegmator for a Temperature Probe: $95.73
CIP System with Plumbing and Pump: $6,255.19
Gin Basket just before the Primary Condenser: $5,940.51